

联系电话:13145204777
本公司简介
赢博官方网站是一家专业从事热镀锌技术服务输出的专业性公司,包括从协助厂家完成可研、规划、能评、环评。提供工厂设计、工艺设计、设备设计制造、安装调试、生产指导到原辅材料提供、专业技术人员培训一条龙服务。服务项目主要有四大板块:一是热镀锌线整体设计、建造和施工,包括配套环保设施:烟尘/酸雾回收利用,废酸/溶剂再生处理系统,废水循环处理系统,吊挂器具;二是热镀锌线设备提供,如工业陶瓷埚、各种能源镀锌加热炉、各种环保设施装备;三是热镀锌线各原辅材料及辅助设施提供,如热镀锌合金、防爆剂、锌液净化剂、助镀剂添加剂、阻镀剂、酸液缓蚀抑雾剂、锌锅保护涂料、震动器、离心机、抽锌泵、捞渣机、热电偶保护套管、吊挂器具专用线材;四是热镀锌各类专业技术人员培训。
项目简介
凯盛重工有限公司,隶属于中国建材集团,是原国家大型煤矿机械制造骨干企业淮南煤矿机械厂通过重组改制按照现代企业制度设立的有限公司。
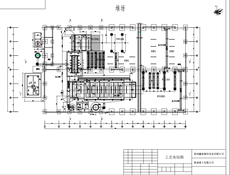
该产线锌锅尺寸8.2*1.6*2.5米,主要镀锌产品是光伏支架,产量约3万吨/年。生产线在现有厂房内建设,线型为镀锌端进端出环形布局,实现闭环式生产,空间利用率高,物流通畅,便于集中控制管理。设备可实现全程数据实时监控,故障诊断、报警。环保设备采用无二次污染、资源可回收再利用的静电捕集技术封闭收集锌烟、酸雾,该环保新技术可实现超微排放,远远高于国家标准及实现资源化回用,且运行费用低。整个工艺系统实现了绿色环保、信息化、智能化,投入产出经济性价比高。

工程工艺布局图
凯盛重工项目重要时间轴: 2021年3月1日项目正式开工,2021年5月14日工程结束

2021年6月25日点火仪式圆满结束
鑫泰员工历经三个多月的努力奋战,终于迎来了胜利的果实。今天是凯盛重工点火的日子,在此祝贺凯盛重工点火成功!

2021年7月15日正式试生产

于今日项目正式下线交接,项目完成